HOME
ABOUT US
PRODUCTS
Wave tanks
Ship gimbals
Spider motion platform
PROJECTS
Reproduction Panzer IV
Rope bridges
Mobile bridge
Snake pit shoring
Portage crane
CONTACT
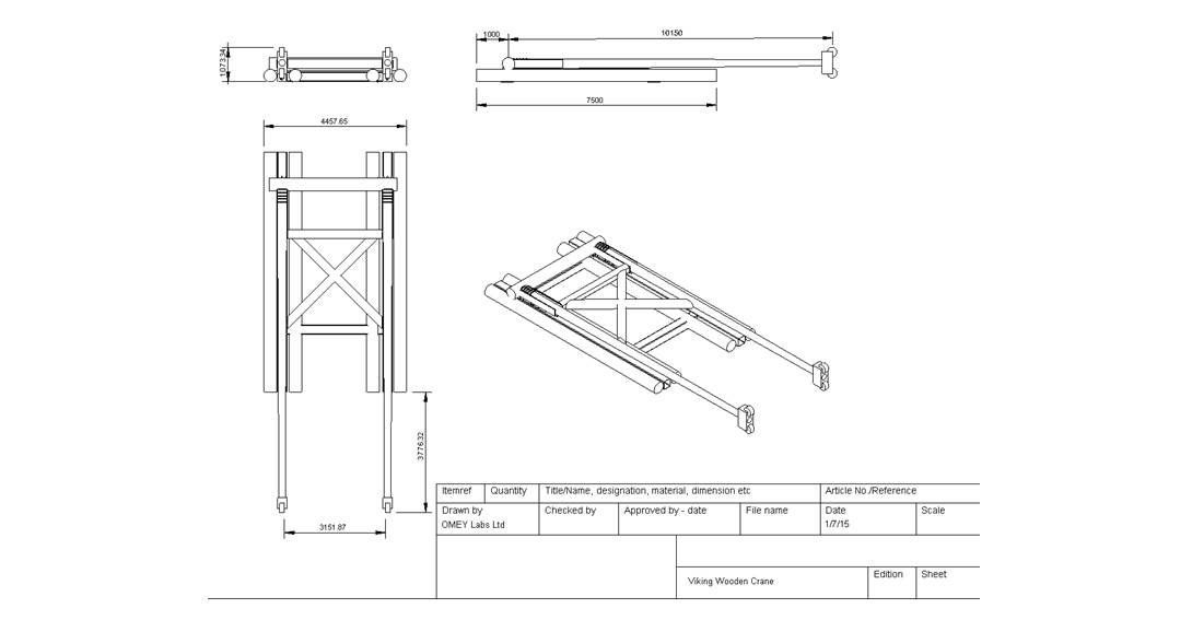
Portage crane
Portage crane
OMEY designed built and hidden steel and hydraulic mechanism to appear to operate a timber portage crane (11mtrs reach).
Design drawings
Button
Simulation
Button
Photo rendering
Button
Installation
Button
Testing
Button
Finished product
Button
View more
Share by: